Las Palmeras
Dieser Entwurf des Architekten Valentín de Madariaga der Casa Las Palmeras für seinen nordeuropäischen Kunden verbindet scheinbar mühelos traditionelle Elemente mit einem glatten, modernen Charakter. Die der Straßenseite zugewandte Fassade präsentiert sich genauso solide und eindrucksvoll wie die der maurischen Häuser in „Al-Andalus“ (historisches Gebiet im Süden Spaniens, als es noch zum islamischen Großreich gehörte), während die Konstruktion und die Geometrie eine zeitgemäße Klarheit und Offenheit vermitteln, die sich mit der Atmosphäre eines Klosters im 21. Jahrhundert vergleichen lassen.
“Vor einiger Zeit stellte mir einer meiner englischen Kunden das Konzept Feng Shui vor, eine chinesische Kunstform, die ich versuche, auf die spanische Landschaft zu übertragen“, erklärt Valentín de Madariaga. „Für mich geht es bei Feng Shui um die Beziehung zwischen der Umgebung und dem Sonnenlicht sowie um das Schaffen von Frieden und Harmonie.“ An erster Stelle beim Entwurf für Casa Las Palmeras stand das Grundstück. De Madariaga erklärt: “Die Geländebeschaffenheit schrieb vor, wo die sechs unterschiedlichen Säulen stehen mussten, welche Proportionen dafür erforderlich waren und wohin die Gartenelemente kommen sollten.“
“Durch die Palmen am Swimmingpool macht das Baden erst richtig Spaß und der Bambus, der den Garten einrahmt, erzeugt den intimen Charakter.“Wie auch der Architekt ist der Bewohner von Casa Las Palmeras ein begeisterter Freund zeitgenössischer Kunst. Das eigentliche Rückgrat des Wohnhauses, das dessen Struktur und die einzelnen Funktionen zusammenhält, besteht aus einem langen Gang, der für die Präsentation der persönlichen Kunstsammlung des Eigentümers in unterschiedlichen Formen genutzt wird. Das indirekte Tageslicht beleuchtet die Gemälde in diesem Gang, der sich vom Fitnessraum bis zu Esszimmer und Wohnräumen erstreckt, bevor er weiter zu den Hauswirtschaftsräumen und den Schlafzimmern der Eltern und Kinder verläuft. Dieses Wohnhaus umfasst eine Gesamtfläche von 1.200 Quadratmetern. Die einzelnen Räume sind alle den überdachten Terrassen, die eine Verbindung zum Garten schaffen, zugewandt.

Der fließende Übergang vom Innen- in den Außenbereich wurde mit vollverglasten Schiebetüren vom Typ
Hi-Finity bewirkt
FlieSS ender Übergang
Die Menschen aus dieser Region verbringen einen Großteil ihrer Zeit im Freien. Die Außenbereiche, die den Garten und die beschatteten Galerien einfassen, sind möglicherweise noch bedeutungsvoller als die funktionalen Innenräume. Der fließende Übergang vom Innen- in den Außenbereich wurde mit ganzen 18 vollverglasten Schiebetüren vom Typ Hi-Finity erzeugt, sodass eine rasierklingendünne Abgrenzung zwischen beiden Teilen entsteht. Die Schiebetüren des Fitnessraums, die zusammen mit dem Partner Grupo Moncada speziell für dieses Projekt erarbeitet wurden, sind wirklich beeindruckend. De Madariaga erinnert sich: “Es war eine riesige Herausforderung, sie auf der Baustelle zu montieren. Zum Glück gelang es uns schnell, eines der vier Glaselemente zu ersetzen, das durch eine starke Windböe zerbrochen ist. Da die Elemente ausserordentlich schwer sind, wurden sie elektromotorisch ausgeführt für ein einfaches Öffnen und Schliessen per Knopfdruck.“ “Diese speziell entwickelten Schiebetüren sind 5,9 Meter hoch und wiegen 285 Kilogramm. Wir produzierten und befestigten die Ersatzlüftung innerhalb von anderthalb Wochen“, sagt José Miguel Moncada von Grupo Moncada. „Auf jeden Fall zwangen uns die Fortschritte beim Bau zu Leistungen in Rekordzeit: Das gesamte Projekt wurde in neun Monaten fertiggestellt.“

Um einen optimalen
Blick auf den Garten zu bieten, wurde die
gesamte Fassade mit
Schiebeelementen
vom Typ Hi-Finity ausgeführt
Die von Grupo Moncada installierten Schiebeelemente vom Typ Hi Finity spielen für den Bezug zur Umgebung eine ausschlaggebende Rolle. Deswegen wurden die Führungen an bestimmten Stellen tief im Fußboden verankert, während die oberen und seitlichen Profile in die Wände integriert wurden. Die einzigen Teile, die noch zu sehen sind, sind die Verriegelungs-/Anschlusselemente an den minimalistisch gestalteten Hi-Finity-Profilen. Bei einem Blick von außen nach innen wirkt das Glas wie ein Spiegel, das die Umgebung widerspiegelt. Eingerahmt durch die weißen Profile des Gebäudes kreiert das leicht verwaschene Bild der Terrassen und der Vegetation fast ein neues, modernes Gemälde: der neueste Zugewinn in der Sammlung des Eigentümers.
Large Hi-Finity sliding doors provide no more than a razorthin separation between interior and exterior
José Miguel Moncada was born in 1970 in San Roque and leads Grupo Moncada, the family-run business established by his father nearly sixty years ago. José Miguel Moncada is an electrical engineerwho also holds a master’s degree in business administration. He expanded the business from its initial focus on wooden doors and window frames into a versatile supplier for the construction sector. The experienced team is continuously introducing new technologies in their factory, which is equipped with state-of the-art machinery. Today they produce furniture along with complex curtain walls and aluminium window frames, the latter exclusively in partnership with Reynaers. “Experience and incorporation of innovative products are key to the success of our projects”, he says.
VALENTÍN DE MADARIAGA Valentín de Madariaga wurde 1960 in Sevilla geboren. Nach seinem Studium an der Escuela Técnica Superior de Madrid (Technische Hochschule für Architektur in Madrid) machte er sich – gemeinsam mit Ernesto Merello - 1987 auf die Suche, wie man die herkömmliche und die moderne Architektur miteinander in Einklang bringen kann. De Madariaga konzentrierte sich schon nach kurzer Zeit vor allem auf anspruchsvolle Einfamilienhäuser mit einem sogenannten Hazienda-Charakter, die typisch für seine Heimat Andalusien sind. Außer ungefähr 150 Häusern für private Bauherren hat er Golfclubs, Restaurants und Schwimmbäder entworfen sowie auch historische Baudenkmäler wie Kirchen restauriert. „Die Umgebung ist ein entscheidender Faktor für die Entwicklung von Architektur, und das schlägt sich in Proportionen, Baustoffen, Temperatur, Licht und Klang nieder, letztendlich aber in Erfahrungen“, meint De Madariaga.

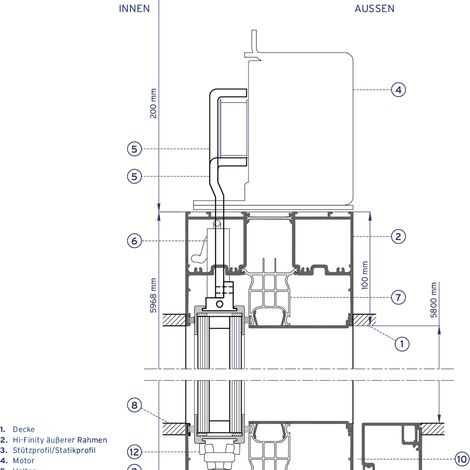
Hi-Finity Sonderlösung für den senkrechten Bereich
Project solution
System: Hi-Finity bespoke solution
Project description:
- External motor mounted on top of frame (20 cm required built-in-depth)
- Special connection from motor to the moving parts of the vents
- Bespoke middle section: double reinforcement profile to support high loads
- Extensive research on the strength and sizes
Element:
- Four vent Hi-Finity sliding door with centre opening
- Dimensions 5.9 x 1.25 m per vent
- Weight per vent: 285 kg
Glazing:
- Double laminated glazing: 44.1/20/44.1

Horizontaler Bereich Hi-Finity Sonderlösung für die Mittelsektion
Verwendete Systeme
- ConceptPatio 68
- HiFinity
Beteiligte Stakeholder
Fabricator
- Moncada Aluminium
Fotograf
- Claudio Curia
Andere Interessenvertreter
- Sander Laudy (Authors)