- Enzmann & Fischer AG
University of Lucerne
La ville de Lucerne a entamé une modernisation radicale de la gare centrale (construite en 1985 par le bureau d'architecture Ammann und Baumann et son employé de l'époque Santiago Calatrava) et du quartier qui s'étend à l'est de cette gare jusqu'au lac des Quatre-Cantons. Depuis 2000, le Palais de la Culture et des Congrès de Lucerne conçu par Jean Nouvel, avec son immense toiture en porte-à-faux, se dresse au bord du lac. À ses côtés, le bâtiment principal de l'Université a récemment ouvert ses portes.
Il ne s'agit pas d'un bâtiment neuf, mais de la rénovation de l'ancien bureau des postes, autour duquel une étonnante façade tridimensionnelle a été posée. La coquille blanche, qui recouvre le bâtiment à partir du deuxième étage, semble décrire un origami complexe autour de la construction de cinq étages, qui abrite plus de 27 000 mètres carrés de surface utile au sol. L'esthétique des façades, ventilées par l'arrière, est renforcée par les fenêtres panoramiques disposées en alternance et qui avancent de 95 centimètres vers l'extérieur. Selon les architectes, le design de la façade s'inspire de références historiques, comme les panneaux solaires pour satellites développés par Koryo Miura dans les années 1960, ou encore les travaux d'Andreas Christen, devenu célèbre à la même époque pour ses larges moules en polyester blanc. Des angles similaires peuvent également être retrouvés sur les façades des bâtiments de la station de ski de Flaine conçus par Marcel Breuer. La composition des façades du bâtiment universitaire rappelle également le bâtiment Tacoma (1887-1889) et ses « bow-windows », développé par le bureau d'architecture Holabird and Roche.

Peau Neuve pour cet an cien bâtiment des postes
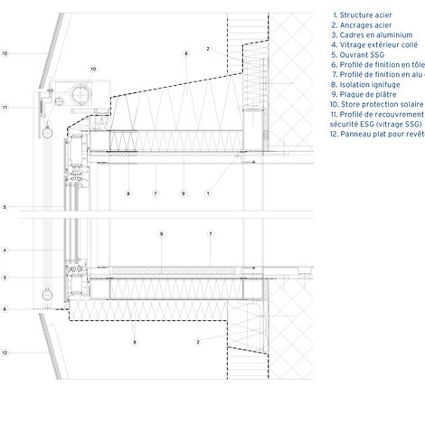
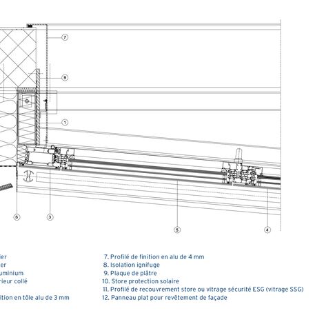
Pendant l'appel d'offre, les architectes du bureau Enzmann & Fischer avaient imaginé une façade avec des éléments de mur-rideau en béton, qui se sont révélés trop onéreux et trop lourds pour la structure existante. Des plaques de support en verre recyclé multi-poli, à triple revêtement polyuréthane, intégrant un châssis en aluminium, sont posés sur l'ancien bâtiment des postes entièrement restructuré. Ce projet repose sur le système StoVerotec, que les architectes ont découvert tandis qu'ils cherchaient une alternative plus légère au béton. En étroite collaboration avec les sociétés Sto AG et GKP Fassadentechnik, le bureau d'architecture Enzmann & Fischer est parvenu à développer la coquille séduisante du bâtiment de l'université, avec les solutions de fenêtre intégrées basées sur le système Reynaers CS 86-HI pour fenêtre et porte. Ce système à trois chambres au pouvoir isolant élevé s'est révélé être la solution idéale pour ce projet de construction complexe. Un segment de vitrage fixe a été associé à deux fenêtres mobiles, mesurant chacune jusqu'à 4,00 x 2,30 mètres et pesant jusqu'à 600 kilos, le tout avec triple vitrage, pour un coefficient d'isolation Uw ≤ 1,0 w/m²K. Les outils standard étant insuffisants pour soutenir ce poids, une solution sur mesure a dû être développée. Pour donner l'impression de surfaces entièrement vitrées, un joint en silicone a été réalisé sur tous les châssis de fenêtre – exigeant le développement d'un profilé sur mesure pour vitrage extérieur collé, anodisé au niveau des joints. Sans l'utilisation de composants à haute performance énergétique dans la construction de la façade, comme les profilés en aluminium et le système de gestion durable de l'énergie (pompe à chaleur et énergie produite par la biomasse), le bâtiment n'aurait pas été conforme au label Minergie, le Suisse pour les bâtiments à haute performance énergétique. Une étroite collaboration entre les différentes parties a été nécessaire dès le lancement du projet jusqu'à l'installation de la dernière poignée de porte, pour que la construction de la façade soit absolument parfaite. La fréquence des réunions, organisées à intervalles réguliers pendant l'appel d'offre, a augmenté une fois le maître d'oeuvre choisie. La coordination pour la réalisation de la façade et des fenêtres de ces dimensions a notamment exigé d'importants efforts de la part de toutes les parties impliquées. Mais ce niveau d'engagement est indispensable pour transformer une bonne idée en une réalité parfaitement exécutée, qui plus est dans un lieu aussi exposé que celui-ci. La précision avec laquelle les surfaces, les angles et les fenêtres ont été réalisés est absolument époustouflante. Together for Better.

Sections élément de fenêtre
Project solution:
System: bespoke solution based on CS 86-HI
Project Description
- Bespoke solution based on CS 86-HI window and door system
- Highly insulated system (Uf up to 1.4 W/m²K) to reach the buildings Minergie label (Uw ≤ 1.0 W/m²K)
- 6500 m² building façade of which 2200 m² windows
- Window elements were prefabricated at the workshop including glazing
- Window elements were mounted without visible fixation
- 3dimensional look by using inclined window setting
- The distance between the wall and the most protruding façade parts is 950 millimeters
Window elements:
- 200 elements with combination of fixed & opening parts
- Glass weight up to 600 kg
- Max. 4000 x 2300 mm
- Possibility to easily replace glass
- WKII burglary proof
Opening parts
- 340 vents
- Weight up to 130 kg
- Inside opening turn
- Partial vents for SE (Smoke & Heat Evacuation) motorized
Glazing
- Triple glazing
- SSG: profiles were anodized to guarantee quality of adhesion

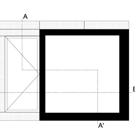
A-A’: section verticale éléments ouvrables et fixes

B-B’: section horizontale élément ouvrable
Parties prenantes impliquées
Architect
- Enzmann & Fischer AG
Fabricator
- Surber Metallbau AG
Photographe
- Bruno Rubatscher
- Dany Schulthess
Autre partie prenante
- Financial department of canton Lucerne (Rafaela Fu (Investors)
- Ursula Baus (Authors)