- Enzmann & Fischer AG
University of Lucerne
Mit dem Luzerner Bahnhof – 1985 von den Architekten Ammann und Baummann mit ihrem damaligen Mitarbeiter Santiago Calatrava gebaut – begann die Stadt vor einigen Jahren eine radikale Modernisierung des Quartiers, das sich auf der Ostseite des Bahnhofs zum See erstreckt: Jean Nouvels Kultur- und Kongresszentrum mit seinem weit auskragenden Dach markiert seit dem Jahr 2000 dieses Seeufer. Unmittelbar daneben wurde vor Kurzem das neue Hauptgebäude der Universität fertiggestellt.
Dabei handelt es sich nicht um einen Neubau, sondern um ein renoviertes Postbetriebsgebäude,um dessen plastische, ungewöhnliche Fassade es im Folgenden geht. Wie ein weißes Faltwerk umhüllt sie ab dem zweiten Obergeschoss den Gebäudeblock, der mit fünf Geschossen immerhin über 27 000 Quadratmeter Nutzfläche verfügt. Die Plastizität der hinterlüfteten Fassaden entwickelt sich mit Aussichtsfenstern, die alternierend in verschiedene Richtungen aus der Fassade herausgedreht sind, über eine Tiefe von 95 Zentimeter. Den Fassadenentwurf sehen die Architekten als Aspekt mit historischen Referenzen, etwa an Solarpanele für Satelliten, die Koryo Miura in den 1960er Jahren aus der japanischen Origami-Kunst entwickelte. Oder die Kunstwerke von Andreas Christen, der zur gleichen Zeit weiße Flächenreliefs aus Polyester goss. In solcher Art gliederte Marcel Breuer die Fassaden seiner Häuser in Flaine, einem französischen Skiressort. Ähnlichkeiten bei der Fassadenkomposition des Universitätsgebäudes finden sich auch zu dem Tacoma Building von Holabird and Roche (1887-89) mit seinen schräg gestellten Fensterflügeln.

Eine beeindruckende Neugestaltung eines ehemaligen Postbetriebsgebäudes
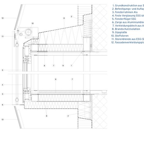
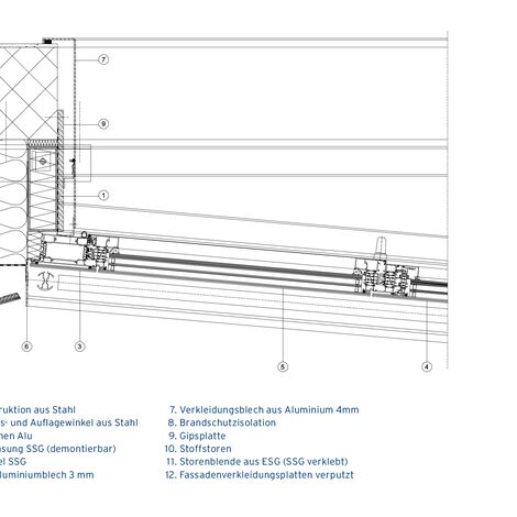
Im Wettbewerb hatten die Architekten Enzmann & Fischer noch vorgehängte Betonelemente für die Fassade vorgesehen, die sich im Nachhinein als zu schwer – und zu kostspielig – für das vorhandene Tragwerk erwiesen. Jetzt hängen dünne Trägerplatten aus mehrfach verputztem, dreifach mit Polyurethan beschichtetem, recyceltem Altglas an einem Aluminiumgerüst an dem völlig neu strukturierten, ehemaligen Postgebäude. Grundlage dafür war das Sto Verotec-System, auf das die Architekten bei der Suche nach einer leichteren Alternative zum Beton gestoßen waren. Mit Sto AG und GKP Fassadentechnik entwickelten Enzmann & Fischer schließlich die kunstvoll inszenierte Hülle des Universitätsgebäudes. Dies einschließlich der außenbündigen Fensterlösung auf der Grundlage des Reynaers Fenster- und Türsystems CS 86-HI. Das thermisch hervorragend isolierte Dreikammersystem eignete sich optimal für die komplexe Konstruktion. Die Fensterelemente bestehen aus der Kombination eines festverglasten Abschnitts mit jeweils zwei beweglichen Fensterflügeln. Die Abmessungen reichen bis zu 4 mal 2,30 Meter, wobei ein Fensterelement bis zu 600 Kilo wiegt. Durch den Einsatz einer Dreifachverglasung wird ein Dämmwert von ≤1,0 w/m²K erreicht. Für solche Gewichte eignen sich Standardglasauflager natürlich nicht; es musste eine Sonderlösung ausgearbeitet werden. Um eine Ganzglasoptik der Fensterflächen zu erreichen, wurde für alle Fensterrahmen eine Silikonverglasung verwendet, wofür ebenfalls ein Sonderprofil mit einer SSG-Anodisierung an den Klebebereichen erarbeitet wurde. Ohne den Einsatz erstklassiger Baustoffe wie hochisolierende Aluminiumprofile bei der Fassadenkonstruktion in Kombination mit einem umweltschonenden Energiehaushalt (Wärmepumpen und Stromerzeugung über Biomasse) hätte das Gebäude den Minergie-Auflagen, der Schweizer Norm für energieeffiziente Gebäude, nicht entsprochen.Damit ein solches Fassadenkonstrukt in millimetergenauer Ausführung zustande kommt, müssen die Beteiligten von der ersten Idee bis zum letzten Handgriff aufeinander abgestimmt arbeiten. Den geregelten Besprechungsrhythmus während der Ausschreibungsplanung intensivierte man nach der Wahl der ausführenden Unternehmen. Vor allem der maßliche Koordinationsaufwand für die Fassadenkonstruktion und die Fenster war für alle Beteiligten mit einem enorm hohen Aufwand verbunden. Und nur mit einem beträchtlichen Engagement lässt sich an einem prominenten Ort wie hier in Luzern eine gut begründete Entwurfsidee perfekt umsetzen. Die Ausführungspräzision mit passgenauen Flächen, scharfen Kanten und perfekt sitzenden Fenstern ist beeindruckend. Together for Better.

Fensterelement
Project solution:
System: bespoke solution based on CS 86-HI
Project Description
- Bespoke solution based on CS 86-HI window and door system
- Highly insulated system (Uf up to 1.4 W/m²K) to reach the buildings Minergie label (Uw ≤ 1.0 W/m²K)
- 6500 m² building façade of which 2200 m² windows
- Window elements were prefabricated at the workshop including glazing
- Window elements were mounted without visible fixation
- 3dimensional look by using inclined window setting
- The distance between the wall and the most protruding façade parts is 950 millimeters
Window elements:
- 200 elements with combination of fixed & opening parts
- Glass weight up to 600 kg
- Max. 4000 x 2300 mm
- Possibility to easily replace glass
- WKII burglary proof
Opening parts
- 340 vents
- Weight up to 130 kg
- Inside opening turn
- Partial vents for SE (Smoke & Heat Evacuation) motorized
Glazing
- Triple glazing
- SSG: profiles were anodized to guarantee quality of adhesion

A-A’: Vertikaler Schnitt, bewegliche und festverglaste Elemente

B-B’: Horizontaler Schnitt, bewegliches Element
Beteiligte Stakeholder
Architect
- Enzmann & Fischer AG
Fabricator
- Surber Metallbau AG
Fotograf
- Bruno Rubatscher
- Dany Schulthess
Andere Interessenvertreter
- Financial department of canton Lucerne (Rafaela Fu (Investoren)
- Ursula Baus (Authors)