- Enzmann & Fischer AG
University of Lucerne
Con la Stazione centrale di Lucerna, costruita nel 1985 dallo studio di architettura Ammann und Baumann e dall'allora collaboratore Santiago Calatrava, è iniziata la modernizzazione radicale del quartiere di Lucerna posto a est rispetto alla stazione verso l'omonimo lago. Il Centro culturale e dei congressi progettato da Jean Nouvel, con il suo ampio tetto sospeso, è stato costruito sul versante del lago nel 2000 e nelle immediate vicinanze dello stesso è stato completato recentemente il nuovo edificio principale dell'Università.
Non si tratta di un edificio nuovo ma della ristrutturazione di un ex ufficio postale, attorno al quale è stata creata un'insolita facciata tridimensionale. La struttura esterna bianca appare come ripiegata in maniera complessa dal secondo piano verso l'alto per i cinque piani dell'edificio, che si estende su una superficie calpestabile di 27.000 metri quadrati. La plasticità delle facciate retroventilate è posta in risalto da finestre panoramiche che sporgono di 95 centimetri dalla facciata in direzioni alternate. Secondo gli architetti il design della facciata presenta riferimenti storici, come i pannelli solari per satelliti sviluppati negli anni '60 da Koryo Miura e ispirati all'arte giapponese degli origami oppure l'arte di Andreas Christen dello stesso periodo, con le sue ampie forme prospettiche che emergevano dal poliestere. Angoli simili sono anche visibili nelle facciate degli edifici di Marcel Breuer situati a Flaine, una località sciistica francese. La struttura delle facciate dell'edificio dell'università presenta anche analogie con i bovindi del Tacoma Building di Holabird e Roche (1887-1889).

Una completa ristrutturazione di un ex ufficio postale
In fase di appalto gli architetti Enzmann & Fischer avevano previsto una facciata costituita da elementi continui in calcestruzzo che, oltre a essere troppo costosi, sono risultati troppo pesanti per il telaio esistente. Ora l'ex ufficio postale completamente ristrutturato presenta lastre portanti sottili e sospese in vetro riciclato, rivestite da un triplo strato di poliuretano lucidato e poste in un telaio in alluminio. La base è costituita dal sistema StoVerotec che gli architetti hanno trovato mentre cercavano una soluzione più leggera in alternativa al calcestruzzo. In stretta collaborazione con Sto AG e GKP Fassadentechnik, Enzmann & Fischer sono riusciti a sviluppare una struttura esterna artistica per l'edificio dell'università, comprese le soluzioni di finestre non sporgenti basate sul sistema di porte e finestre Reynaers CS 86-HI. Questo sistema a tripla camera ad elevato isolamento si è dimostrato perfettamente indicato per il complesso sistema costruttivo. Un segmento vetrato fisso è stato abbinato a due finestre mobili, ottenendo dimensioni totali di 4 x 2,30 metri e un peso di 600 chilogrammi, il tutto con tripli vetri che offrono valori di isolamento ≤1,0 w/m²K. Ovviamente i supporti standard erano insufficienti per questo peso ed è quindi stato necessario progettare una soluzione su misura. Per ottenere superfici di finestre che risultassero interamente in vetro sono state impiegate vetrate con silicone per tutti i telai delle finestre e si è quindi reso necessario lo sviluppare di un altro profilo su misura anodizzato SSG nelle aree sigillate. Senza l'impiego di componenti a elevate prestazioni nella struttura della facciata quali profili in alluminio ad alto potere isolante unitamente a sistemi di gestione energetica ecocompatibili (pompa di calore e alimentazione a biomasse), l'edificio non avrebbe soddisfatto lo standard Minergie per l'efficienza energetica degli edifici vigente in Svizzera.
Per garantire l'accuratezza di questa struttura di facciata fino all'ultimo millimetro è stata necessaria una stretta collaborazione tra tutte le parti, dalla prima idea di installazione all'ultima maniglia. La frequenza delle riunioni durante il processo di appalto è aumentata una volta scelta l'impresa esecutrice. In particolare, il coordinamento delle dimensioni della struttura della facciata e delle finestre ha richiesto sforzi notevoli da parte di tutti i soggetti interessati, per trasformare un'idea di design ben concepito in un'opera realizzata a regola d'arte come questa di Lucerna. La precisione con la quale sono state realizzate le superfici personalizzate, gli angoli vivi e le installazioni delle finestre è sicuramente di grande impatto. Together for Better.

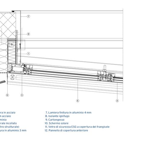
Sezioni dell’elemento della finestra
SPECIFICHE DI PROGETTO
- Soluzione su misura basata sul sistemi per porte e finestre CS 86-HI
- Sistema altamente isolante (Uf inferiore o uguale a 1.4 W/m2K) che permette di ottenere il riconoscimento Minergie per edifici (Uw ≤ 1.0 W/m2K)
- 6500 m2 di facciata, di cui 2200 m2 di finestre
- Le cellule, compresi i vetri, sono state completamente preassemblati in officina
- Le cellule sono state installate senza fissaggi visibili
- Aspetto tridimensionale grazie all’utilizzo di finestre inclinate
- La distanza fra il muro e le parti piu sporgenti della facciata e pari a 950 millimetri
Finestre:
- 200 elementi, fra fissi e apribili
- Peso massimo fino a 600 kg
- 4000 x 2300 mm
- Possibilita di sostituire facilmente i vetri
- Classe antieffrazione WKII
Parti apribili:
- 340 ante
- Peso massimo 130 kg
- Battente apertura interna
- Aperture motorizzate per evacuazione da fumo e calore (SE - Smoke & Heat Evacuation)
Vetratura:
- Triplo vetro
- SSG vetro strutturale: i profili sono stati anodizzati per garantire l’adesione

A-A’: sezione verticale degli elementi di apertura e fissi

B-B’: sezione orizzontale dell’elemento di apertura
Stakeholder coinvolti
Architect
- Enzmann & Fischer AG
Fabricator
- Surber Metallbau AG
Fotografo
- Bruno Rubatscher
- Dany Schulthess
Altre parti interessate
- Financial department of canton Lucerne (Rafaela Fu (Investors)
- Ursula Baus (Authors)